Шаблон пропеллеров 18х6 и 16х10

sergey56gr

Прочитал всю ветку и все вложения и приложения к ней, но нигде не всретил как построить самому вид винта сбоку, т.е как раз именно то , что и определяет ШАГ ВИНТА . Поэтому решил , как здесь многие выражаются - вставить своих 5 копеек.
И так . Сначала определяем параметры винта исходя из того куда его будем потом ставить. Для этого есь специальный график, что бы не шарить по ветке- приведу его здесь еще раз
Теперь можно начинать чертиь. Вид в плане оптимизировать без аэродинамической трубы и испытаний -невозможно,поэтому его рисуют- кому какой больше по душе. Справедливости ради можно сказать , что так называемое “весло” самый распространенный винт. Еще надо соблюдать наиболее распространенный параметр - это ширина лопасти, которая равна примерно 20% радиуса винта и расположена она примерно посеретине радиуса… А в целом винт- это тоже самое крвло, а оптимальная форма крыла- это эллипс.

sergey56gr

И так вид в плане готов. Вот теперь самое время обратиться к теории.
Воздушный винт - это “часть простого винта”. То есть если представить себе обычный винт но с очень высокими витками (вроде шнека) и если вырезать из него полоску отступив от диаметральной плоскости в обе стороны на небольшое расстояние- получим воздушный винт. Так вот если этот вырезаный винт начать вращать , считая воздух “гайкой”, то за один оборот винт переместится на расстояние равное шагу винта .

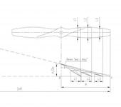
Если теперь развернуть этот цилиндр с нарисованой на нем винтовой линией то получится, что кончик винта прочертил прямую линию- гипотенузу треугольника с катетами равными, соответственно шагу винта “Н” и длине окружности “2nR”. Но так как у других частей винта расположенных на разных удалениях от центра будет другая длина развертки их пути, то что бы эти части винта могли поднятся на туже величину шага “Н” они дожны иметь другой угол утановки.

Pereplet54

Хорошо.
Очень хорошо. Коротко, четко и ясно.

sergey56gr

Забодался редактировать. Хотел заменить картинку, в итоге похерил все что далее было написано, а не нужная картинка превратилась в миниатюрю и теперь ее не могу удалить. Вобщем миниатюра лишняя, а писать все заново- приятного мало.
Пойдем дальше.
Непосредсвенно построение вида с боку.
От полученного треугольника “АCD”(см. каринку выше) возьмем его уменьшенную в “2n” раз ( и соотв. подобную ему) часть “АОВ” над веришой “О” нарисеум винт “вид в плане” и на ней возьмем произвольно вертикальные сечения L1, L2, L3 и т.д., продлим от них линии связи до пересечения с катетом “АВ”. Из полученных точек пересечения с катетом, проведем прямые в току “О”. Также от этих точек отложим на катете влево соответсвующие длины L1, L2, L3 и т.д и от левых концов этих “длин” построим вертикальные отрезки до пересечения с соответствующими наклонными прямыми идущими в точку “О”. Полученнве верикальные отрезки и есть искомые толщины заготовки в данных местах. На каринке - линия с двумя точками и есть вид сбоку, если принять одну из сторон заготовки плоской. Но часто из условий эксплуатации ,например, чтобы задняя кромка была подальше от кока , иглы карбюратора и т.д. , а также соображений аэродинамики ее делают в виде сабли. Тогда передняя кромка естественно тоже дудет саблей-, но построить ее теперь уже не проблема… К стати при виде в плане -винты тоже бывают саблевидные. Это делает их более стойкими к флаттеру, т.е. вибрации лопасти. Это достигается потому что отогнутая часть выполняет своего рода роль стабилизатора. Это актуално для винтов применяемых для пенолетов. у которых винты обычно очень тонкие (не путайте с шириой) и даже имеют вогнуттый профиль.

На ряду со ссылкой в предыдущей статье , где есть форула, расчета толщин вида с боку- теперь вид с боку еще все могут построить без лишних расчетов с помощюю линейки и карандаша- главное не забываить про пир-пиры и параллели.

Тему пожалуй можно закрывать.

Pereplet54

Та-а-а-к!
Сначала вчитаемся, осмыслим, впитаем.

Всю “ботанику” забыл.
Без осмысления ни как.

sergey56gr
Pereplet54:

Та-а-а-к!
Сначала вчитаемся, осмыслим, впитаем.

Всю “ботанику” забыл.
Без осмысления ни как.

Ну как процесс осмысливания?
Это я просто хочу узнать- доходчиво-ли я сочинил и будет ли это полезно.
Жаль, что статейка получилась из нескольких частей- ну вот такой я юзер.

Pereplet54

Вот теперь начинаются вопросы.

Файлы большие, по сему, сбросил их в депозит depositfiles.com/files/r3ry4ugw4.

Вопросы такие:

  1. Какую толщину заготовки я должен взять? В данном случае взял произвольную 15 мм.
  2. Что делать с концами линий взятых в эллипс?

Красная линия есть граница бокового вида. Ну, Вы это и без объяснения поймете.
Сечения взял не на равном расстоянии друг от друга.
В Corel оставил все вспомогательные линии,которые мне нужны были при построении.
Профиль сечения лопасти не чертил, так как, на данный момент нет такой задачи.

sergey56gr

Сообщение от Pereplet54
Вот теперь начинаются вопросы.

Файлы большие, по сему, сбросил их в депозит depositfiles.com/files/r3ry4ugw4.

Вопросы такие:

  1. Какую толщину заготовки я должен взять? В данном случае взял произвольную 15 мм.
  2. Что делать с концами линий взятых в эллипс?

Файлы, вобщем-то не большие, они и так бы загрузились бы. Ну это как говориться хозяин- барин.
“Корелом” пока не пользуюсь- я не свободный художник (пусть онные не обижаются за щютку), я анжынер- конструктор, “рисую” в автокаде. За ссылку спасибо, надо будет ознакомиться (как нибудь попозжее)- давно подумывал… Пока , что у меня комп. не позволит такую роскошь. Хоть и не старый, но иногда конкретно притормаживает -слишком много в него напихано. Поэтому смотрел только картинку. Конечно без полной картины построений, трудно сказать, но похоже, что там все верно. Что касается линий в эллипсе- то для комлевой части , которая практически не работает, тем более часто закрыта коком не стоит даже делать построения. Ведь чем ближе к цетру- тем угол установки лопасти все больше стремиться к 90 градусам. Естественно, -толщина винта будет стремиться к бесконечности - это абсурд. Поэтому комлевую часть делают обычно по толщине такой которая получается, ну примерно, на 25-30% от центра винта. А иногда, если шаг большой- то и тоньше, что бы было куда гайку навентить на вал. Поэтому толщина заготовки тоже выбирается равной толщине полученной посторением для сечения на на удалении от центра 25-30 % или еще дальше .Кроме того, что комлевая часть практически всегда “дует” в морду лица самолета, т.е затенена, она еще и работает с гораздо меньшими линейных скоростями чем перефирийные сечения . В цетре - линейная скорость ваще рана НУЛЮ -это как раз соответсвует тому, что толщина там и получается равной бесконечности. А подёмная сила (а лопасть -это крыло- которое вращается) зависит от скорости в квадрате

Y=Cy*(рV^2)/2*S.

Здесь:
Cy-коэффициент подъмной силы- главная характеристика профиля крыла, зависящая от формы и угла атаки (до наступления срыва потока, т.е. до критического угла атаки она растет с увеличение угла атаки, потом резко падает)
р- плотность воздуха;
V- скорость полета;
S-площадь крыла.
То есть эффективность винта - чем ближе к оси- тем больше стремиться к НУЛЮ- и поэтому -там все делается из конструктивный соображений и соображений прочночти, а не аэродинамики.
И еще. Так как лопасть - это крыло, которое вращается, то соответсвенно разные его части движутся с разными линейными скоростями- поэтому для получения одинаковой подьеной силы на разных участках крыла (а это важно для предотвращения срыва потока ) должен быть и разный угол атаки- что и получается при правильном виде с боку на заготовку винта. То есть все части винта должны не только правильно двигаться по винтовой линии одного шага, но и правильно работать с аэродинамической точки зрения.

Ну думаю, что не запарил.

P.S.
Для винтов с большим шагом , чтобы комель не был слишком толстым, вид с боку (если рассматриваить сразу обе лопасти) часто делают в виде “накрашенных губ” модниц в стиле ретро- как говорили раньше- губы бантиком. то есть примерно начиная с 2/3 от конца лопасти его при виде с боку начинают утоньшать так чтобы в районе бобышки она была приемлимая , и на вал двигателя можно было накрутить гайку, да еще и шайбу подложить.
И тогда комлеваая часть, если бы она могла работать - то ваще бы не смогла бы правильно работать исходя из правил построения, расчетов и аэродинамики.- ну и фиг с ней говорят все моделисты и не только они.

sergey56gr

ЕЩЕ РАЗ ПОДЧЕРКИВАЮ- МИНИАТЮРА РАЗМЕЩЕНА ЗДЕСЬ ОШИБОЧНО- ОНА НЕПРАВИЛЬНАЯ.
ЛИНИЯ ВИДА С БОКУ ДОЛЖНА ПРОХОДИТЬ ЧЕРЕЗ ПРАВЫЕ ВЕРХНИЕ УГЛЫ ПРЯМОУГОЛЬНИКОВ-КАК НА КАРТИНКЕ ГДЕ ОНА “ПРЕРЫВИСТАЯ С ДВУМЯ ТОЧКАМИ”.

Я САМ НЕ ЗНАЮ КАК ОНА СОХРАНИЛАСЬ, ВЕДЬ ПРИ НАПИСАНИИ СТАТЕЙКИ Я ЕЕ УДАЛЯЛ. А СЕЙЧАС УЖЕ ОНА НЕ ПОДДАЕТСЯ УДАЛЕНИЮ

Pereplet54

Ничего страшного.
Сейчас я Вам в личку сброшу ссылку на обработанный материал.
Вы его проверьте пожалуйста.
Сделайте какие надо исправления. Обязательно впечатайте в имени и фамилии отчество.
Исправленный материал сбросим в файлообменники и здесь поместим на него ссылку.

Хороший материал. Пользы от него много.
Я же попробовал по нему начертить. Тоже думаю что все получилось.
А замялся со ступицей, так после Вашего предпоследнего поста “просветлел”.

Все сбросил Вам ссылку.
Пришлось на files.mail.ru разместить. Что то депозит захандрил.

--------------------------------------------------------

Тут оказывается условие - в час одно сообщение.
Ну ничего.
Вот по этой ссылке посмотритеwww.onlinedisk.ru/file/623580/.
Просто не проверенный материал здесь выставлять не хотелось.

Ага все сработало. Проверил, все нормально. Можно скачивать.

Pereplet54

Уважаемые коллеги!

Сообщаю Вам ссылки на статью “Простая теория и практика графического построения винта”,
подготовленную автором материала Сергеем Леонидовичем Гриценко (sergey56gr).

Не большой по объему, но интересный материал “загружен” на три файлообменника и предназначен
для свободного использования в построении бокового вида воздушного винта.
Размещение одного и того же материала на трех разных файлообменниках, применено для Вашего удобства.
Не у всех компьютер или возможности соединения интернет, позволяют свободно скачивать, к примеру с депозита.
Файлообменники выбраны произвольно, по принципу “что под руки попалось”.
Файл сохранен в Word 97-2003.
На депозит помещен в самораскрывающемся архиве.

depositfiles.com/files/2uw4m4gqm
www.onlinedisk.ru/file/624859/
files.mail.ru/4I694R

2 months later
LUX
sergey56gr:

[B][U]… ВЕДЬ ПРИ НАПИСАНИИ СТАТЕЙКИ Я ЕЕ УДАЛЯЛ. А СЕЙЧАС УЖЕ ОНА НЕ ПОДДАЕТСЯ УДАЛЕНИЮ

ЕЕ можно удалить! заходите в кабинет -мои настройки - разное -вложения .Смотрите вложение, которое нужно убрать, ставите галочку и жмите внизу удалить.