чертежи в автокаде делаю, как только определюсь с размерами выложу скрин.
Одно приятно, что у человека есть идея и не обязательно чтоб она была реализована, достаточно длительной мыслительной работы, ведь это тоже труд, не всеж руками и станками ваять.
золотые слова.
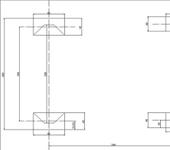
чертеж с размерами колесной базы и колеи, думаю над тем какой ширины делать “корму”… ну и соответственно рычаги. ширина диффа 75мм(с проушинами) думаю и заднюю часть платы такой же сделать по ширине.
нашел способ снять с автокада чертеж в лутшем качестве)
задняя ось слева, передняя справа.
люди помогите выбрать мне подшипники на подвеску для моих размеров модели =) не могу начать работать над ступицами заднего моста и поворотными кулаками передней( не зная размеров подшипников((
подшипники вам нужны исключительно керамические чтоб трение свести на нет и размер как можно меньше чтоб вес был минимальным тогда максимальная скорость возрастет и в космос можно попасть легко 😵 Думаю чтоб вам насладится гениальностью вашей идеи вам необходимо купить багги за 10 т.р и быдет вам несказанное счастье . Вы достигнете апогея совоей мысли отда в в касс у 3 рубля 😉
а я бы купил шасю в барахолке самую убитую. а потом скопировал размеры расположение итд. и внес свои гениальные поправки в никудышное творение заводских инженеров.
… подшипники …
Стандартные подшипники в ступицы для 1/8 моделей 8х16х5.
Хоть у тебя и планируется 1/10, но с твоим весом лучше с запасом взять.
А вообще все размеры и детали можно посмотреть в exploded view, скачай к любой модели.
Maxbl4
спасибо за совет)
Maxbl4
а поточнее не можешь сказать что лутше выбрать (ну примерно хотябы) и где можно достать в москва? 😉
спасибо большое!!! можно былоб поставить плюс сразуб поставил 😉 у них еще и аллюминий есть листовой 😃
Здравствуйте!
Как продвигается ваш проект?Можно фото (если есть)
Сам начал не так давно собирать багги 1:10, есть у самого продвижения.
Интересно как вы собираете подвеску и т.д.
Желаю удачи в постройке!
Мое мнение может быть для начала купить готовую модель и попытся внести усовершенствования в отдельные узлы
и если будет положительный результат постепенно заместить другие узлы своими и получить модифицированное шасси.
Популярное Саважа к примеру принесло именно огромное количество модов, сайтов на эту тему и промышленно выпускаемых
hop ups. Замахиваться на создание без опыта своего шасси с нуля я бы не стал. Я привел для примера сборочный чертеж
безымянной багги, просто, чтобы трезво оценить свои силы.
Это не собственное шасси с нуля- на основе популярных моделей( я например собираю псевдо киош лазер, со своим не большим кастомом) Это же творчество, а не покупка готового. На готовых не возможно почти сразу определить(иногда) что сломалось а на самодельной мона любую деталь не КУПИТЬ а сделать.
{"assets_hash":"a8b26fa7f6e768b07a72c8c9aadb9422","page_data":{"users":{"40c614c13df9550077794700":{"_id":"40c614c13df9550077794700","hid":3706,"name":"dimas","nick":"dimas","avatar_id":null,"css":""},"422da7ac3df9550077791d02":{"_id":"422da7ac3df9550077791d02","hid":6373,"name":"Щукарь","nick":"Щукарь","avatar_id":null,"css":""},"4315c9a33df955007778f633":{"_id":"4315c9a33df955007778f633","hid":8907,"name":"Mad_B","nick":"Mad_B","avatar_id":null,"css":""},"45b716723df955007778696e":{"_id":"45b716723df955007778696e","hid":20028,"name":"Maxbl4","nick":"Maxbl4","avatar_id":null,"css":""},"45f5902b3df9550077785ae5":{"_id":"45f5902b3df9550077785ae5","hid":21327,"name":"Getfret","nick":"Getfret","avatar_id":null,"css":""},"4690bf933df9550077782bda":{"_id":"4690bf933df9550077782bda","hid":25390,"name":"bam51","nick":"bam51","avatar_id":null,"css":""},"46fa47e03df9550077780e52":{"_id":"46fa47e03df9550077780e52","hid":28078,"name":"GAGARIN","nick":"GAGARIN","avatar_id":null,"css":""},"48e9c7ee3df9550077776d7c":{"_id":"48e9c7ee3df9550077776d7c","hid":39099,"name":"Расуль","nick":"Расуль","avatar_id":null,"css":""},"491d9c8a3df95500777757e8":{"_id":"491d9c8a3df95500777757e8","hid":40662,"name":"rcautoclub","nick":"rcautoclub","avatar_id":null,"css":""}},"settings":{"can_see_ip":false,"can_report_abuse":false,"can_see_hellbanned":false,"forum_can_view":true,"forum_can_reply":false,"forum_edit_max_time":30,"forum_can_close_topic":false,"forum_show_ignored":false,"forum_mod_can_delete_topics":false,"forum_mod_can_hard_delete_topics":false,"forum_mod_can_see_hard_deleted_topics":false,"forum_mod_can_edit_posts":false,"forum_mod_can_pin_topic":false,"forum_mod_can_edit_titles":false,"forum_mod_can_close_topic":false,"can_vote":false,"forum_mod_can_add_infractions":false,"forum_topic_title_min_length":10,"forum_reply_old_post_threshold":30,"votes_add_max_time":168,"forum_show_post_interval":7,"can_see_deleted_users":false},"section":{"_id":"61c9a54c3df9550077bb50ed","hid":27,"title":"Авто Off-Road","parent":"61c9a54c3df9550077bb50ff","description":"Внедорожники - монстр-траки, багги, стадиум-траки и другие. Масштабы от 1:12 до 1:8.","is_category":false,"is_votable":true,"is_writable":true,"cache":{"topic_count":7589,"post_count":468976,"last_post":"68f50bdfb4761b70be6c0aab","last_topic":"68f50bc844153b3865abe65d","last_topic_hid":572662,"last_topic_title":"помогите найти колеса на Kyosho Mad Force Kruiser Gp","last_ts":"2025-10-19T16:03:43.616Z","last_user":"68f3af19eede43b1c415d9e1"}},"topic":{"_id":"48c8d9803df9550077ab984e","hid":113286,"title":"Hand Made Buggy","views_count":4242,"last_post_counter":44,"cache":{"post_count":44,"first_post":"48c8d9803df9550077aba78b","first_ts":"2008-09-11T08:40:32.000Z","first_user":"4315c9a33df955007778f633","last_post":"492196f93df9550077aba7e1","last_post_hid":44,"last_ts":"2008-11-17T16:08:25.000Z","last_user":"48e9c7ee3df9550077776d7c"},"st":1,"section":"61c9a54c3df9550077bb50ed"},"subscription":null,"pagination":{"total":44,"per_page":25,"chunk_offset":25},"posts_list_before_post":["paginator","datediff"]},"locale":"en-US","user_id":"000000000000000000000000","user_hid":0,"user_name":"","user_nick":"","user_avatar":null,"is_member":false,"settings":{"can_access_acp":false,"can_use_dialogs":false,"hide_heavy_content":false},"unread_dialogs":false,"footer":{"rules":{"to":"common.rules"},"contacts":{"to":"rco-nodeca.contacts"}},"navbar":{"tracker":{"to":"users.tracker","autoselect":false,"priority":10},"forum":{"to":"forum.index"},"blogs":{"to":"blogs.index"},"clubs":{"to":"clubs.index"},"market":{"to":"market.index.buy"}},"recaptcha":{"public_key":"6LcyTs0dAAAAADW_1wxPfl0IHuXxBG7vMSSX26Z4"},"layout":"common.layout"}