Либо я дурак либо лыжи не едут, но найти нужного не могу. оно точно где то должно быть. мне надо из ппм сум раскодировать остальные каналы для управления переферией на коптере. Помогите плз. в идеале на ардуине
либо то, Что сможет вытянуть 5 6 7 8 каналы из PPM SUM (перешитый Frsky)
А в поиске в гугле пробовали вводить фразу PPM decoder? И так же введите фразу PPM декодер в поиске на этом форуме, там море схем!
А так же можно сделать простейший декодер без проца, на простой логике CD4015.
Типа вот:
О спасибо. И можно будет его подключить параллельно контроллеру? не будет мешать?
и оно питается он 3.6 вольт? 5 не покатит?
Не будет. Ну для уверенности можно поставить 1К по входу.
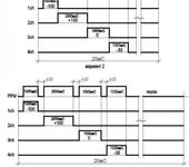
Джентльмены, подскажите пожалуйста, как выглядит сигнал ППМ. Дело в том, что в двух разных источниках я нашёл две разные осциллограммы. Хотелось бы узнать, как на самом деле. Чтобы проще, нарисовал две картинки.
Вопрос: на какой картинке правильно?
на верхней.
на верхней.
Спасибо! Я тоже к этому склонялся, ибо вторая картинка, это скорее “широтно-фазовая модуляция” 😃
Значит, импульсов на один больше чем каналов, иначе как закрыть последний канал.
ибо вторая картинка, это скорее “широтно-фазовая модуляция”
Вторая картинка - это то что получится, если выходы приемника собрать через диоды в “псевдо-ппм-сумм”. Не на всех приемниках правда получается, но на некоторых получается. Закрыть последний импульс можно по длительности всего фрейма. Этот трюк применяли к примеру в мульти-вии при соединении приемника по псевдо-ппм-сумм через диоды.
Посмотрите тут:
Глайдер весьма правильно и понятно писал. А еще статьи прямо тут на сайте были, в т.ч. о приемнике ИГВА. Из них тоже многое понятно.
Всё, разобрался при помощи осциллографа. Как на первой картинке, но инверсно, т.е. фоном идёт единица, и короткие импульсы на ноль.
Пользуюсь комплектом 2.4 ГГц корона от эксперта. Надо 12 каналов, но до смерти не хочется покупать второй приёмник. Хочу вместо одного из каналов вывести ППМ, и поиметь доп. каналы через декодер. Ещё не проверял, но надеюсь что на одной из лап контроллера приёмника ППМ присутствует. Спросил у Эксперта, но молчок 😃
собрал наконец декодер и не пашет. без добавочного резистора по входу сигнала (1.3ком) наза вообще не видит что приемник подключен. что проверять?
без добавочного резистора по входу сигнала (1.3ком) наза вообще не видит что приемник подключен
Возможно у вас не работает, потому что РРМ инверсный. Возможно, его нужно наоборот инвертировать, и декодер увидит его.
Сравните осцилограммы точек замера KT2 и KT3 со статьей, должно совпадать.
KT3 - очень важный сигнал, это импульс сброса. Когда наступает синхро пауза, то конденсатор 0,1 мк, успевает зарядиться, и на 15 ноге получается лог 1, что переводит микросхему счётчика в нулевое состояние, т.е. получается сброс микросхемы. Здесь очень важную роль, играет кондёр 0,1 мк. Нельзя что бы он был больше 0,1 или меньше. +/- 20-30% не страшно.
Соответственно, для правильной работы, нужно что бы РРМ сигнал имел вид как в точке KT2, т.е. межканальная пауза была лог.1, все остальное лог.0, и синхро пауза конечно же, лог 0.
DJI NAZA lite. мозг коптера
НА сколкьо помню, инвертировать можно транзистором? или двумя…
О боже…
Одним транзистором…
Нарисовать?
сначала надо сигнал проверить
А почему “о боже” ? 😃
Вопросы сильно ламерские…
вот что мы имеем на выходе приемника
{"assets_hash":"a8b26fa7f6e768b07a72c8c9aadb9422","page_data":{"users":{"3e7587103df95500777968ac":{"_id":"3e7587103df95500777968ac","hid":1461,"name":"ubd","nick":"ubd","avatar_id":null,"css":""},"416128d73df9550077793889":{"_id":"416128d73df9550077793889","hid":4637,"name":"Aleksey_Gorelikov","nick":"Aleksey_Gorelikov","avatar_id":null,"css":""},"46847ae33df95500777830ba":{"_id":"46847ae33df95500777830ba","hid":24889,"name":"foxfly","nick":"foxfly","avatar_id":null,"css":""},"526d76f73df9550077730922":{"_id":"526d76f73df9550077730922","hid":180866,"name":"styxer","nick":"styxer","avatar_id":null,"css":""},"52b1d8df3df955007772e98d":{"_id":"52b1d8df3df955007772e98d","hid":190661,"name":"Илья_МГУ","nick":"Илья_МГУ","avatar_id":null,"css":""}},"settings":{"can_see_ip":false,"can_report_abuse":false,"can_see_hellbanned":false,"forum_can_view":true,"forum_can_reply":false,"forum_edit_max_time":30,"forum_can_close_topic":false,"forum_show_ignored":false,"forum_mod_can_delete_topics":false,"forum_mod_can_hard_delete_topics":false,"forum_mod_can_see_hard_deleted_topics":false,"forum_mod_can_edit_posts":false,"forum_mod_can_pin_topic":false,"forum_mod_can_edit_titles":false,"forum_mod_can_close_topic":false,"can_vote":false,"forum_mod_can_add_infractions":false,"forum_topic_title_min_length":10,"forum_reply_old_post_threshold":30,"votes_add_max_time":168,"forum_show_post_interval":7,"can_see_deleted_users":false},"section":{"_id":"61c9a54c3df9550077bb50ba","hid":8,"title":"Самодельная электроника, компьютерные программы","parent":"61c9a54c3df9550077bb50f3","description":"Софт для моделирования и черчения, самодельные электронные устройства.","is_category":false,"is_votable":true,"is_writable":true,"cache":{"topic_count":2668,"post_count":48285,"last_post":"69396824b4761b70be1cf1f6","last_topic":"6936752c44153b3865eede83","last_topic_hid":572669,"last_topic_title":"Последовательность работы сервоприводов.","last_ts":"2025-12-10T12:31:32.140Z","last_user":"4f3e22e13df955007774805c"}},"topic":{"_id":"535d2f643df95500770748fc","hid":362507,"title":"Подскажите схемку декодера PPM Sum 8 каналов","views_count":6762,"last_post_counter":32,"cache":{"post_count":32,"first_post":"535d2f643df9550077074d6c","first_ts":"2014-04-27T16:25:08.000Z","first_user":"526d76f73df9550077730922","last_post":"541322c33df9550077074daa","last_post_hid":32,"last_ts":"2014-09-12T16:43:47.000Z","last_user":"52b1d8df3df955007772e98d"},"st":1,"section":"61c9a54c3df9550077bb50ba"},"subscription":null,"pagination":{"total":32,"per_page":25,"chunk_offset":0},"posts_list_before_post":["paginator","datediff"]},"locale":"en-US","user_id":"000000000000000000000000","user_hid":0,"user_name":"","user_nick":"","user_avatar":null,"is_member":false,"settings":{"can_access_acp":false,"can_use_dialogs":false,"hide_heavy_content":false},"unread_dialogs":false,"footer":{"rules":{"to":"common.rules"},"contacts":{"to":"rco-nodeca.contacts"}},"navbar":{"tracker":{"to":"users.tracker","autoselect":false,"priority":10},"forum":{"to":"forum.index"},"blogs":{"to":"blogs.index"},"clubs":{"to":"clubs.index"},"market":{"to":"market.index.buy"}},"recaptcha":{"public_key":"6LcyTs0dAAAAADW_1wxPfl0IHuXxBG7vMSSX26Z4"},"layout":"common.layout"}