Добрый вечер. Опорные катки и ленивцы как и траки лью в металлические формы. Только во время розлива форму ставлю на железный лист и перфоратором создаю вибростол. Тогда проливаются ребра на колёсах.
Спасибо! Вибростол- отличная идея. Делаю Т-34-76, добрался до траков. Планирую лить из ЦАМа или аллюминия. Вопрос: формы для траков на каком станке делали? Фрезер 3D? Буду признателен за описание технологии изготовления форм.
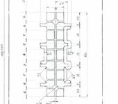
Добрый вечер. У меня модель Т-44 .А этот танк бегал на поздних траках от Т-34-85. На вашей модели траки другой конфигурации. Чертежи формы для литья траков я отсканировал . Чертеж 1и3 нижней части формы . Чертеж 2и4 средней части. Детали 2и4 изготавливаются по 2шт а потом свариваются. Деталь 2 - зеркально 2шт . Деталь 4- тоже. Формы изготавливались на фрезерном станке НГФ-110. Фоток самих форм нет. Буду в гараже сфоткаю и выложу Вам стоит посмотреть тему на этом форуме rcopen.com/forum/f99/topic325556 . Она вам ближе. Р.S Кстати в посте №8 на заднем плане за моделью ваше родное Т-34-76 штампованное ведущее колесо
Спасибо! По типу траков знаю. Интересует именно технология изготовления. Катки, балансиры, свечи подвески готовы. Корпус вернется с покраски, установлю ходовую. Начну делать траки.
Добрый вечер. Несколько фото модели.
Миша у тебя всегда всё класс,Хочу посоветовать отойти от пружин на тарсионах а сделать тарсионы из торсионных полос запорожца передней подвески.
модели в 8м масштабе держат просто класс. Дружище только совет и не более. Седой.
Добрый вечер. Вариант с торсионами прорабатывался но увы не подошел. Торсионы забирают 15-18 мм высоты корпуса и потом не влазят аккомуляторы.
{"assets_hash":"a8b26fa7f6e768b07a72c8c9aadb9422","page_data":{"users":{"509165573df955007773e204":{"_id":"509165573df955007773e204","hid":128231,"name":"MaximT","nick":"MaximT","avatar_id":null,"css":""},"543171b13df9550077724f84":{"_id":"543171b13df9550077724f84","hid":208887,"name":"миша_50","nick":"миша_50","avatar_id":null,"css":""},"57eff30a3df955007770d0f6":{"_id":"57eff30a3df955007770d0f6","hid":258225,"name":"piksel","nick":"piksel","avatar_id":null,"css":""}},"settings":{"can_see_ip":false,"can_report_abuse":false,"can_see_hellbanned":false,"forum_can_view":true,"forum_can_reply":false,"forum_edit_max_time":30,"forum_can_close_topic":false,"forum_show_ignored":false,"forum_mod_can_delete_topics":false,"forum_mod_can_hard_delete_topics":false,"forum_mod_can_see_hard_deleted_topics":false,"forum_mod_can_edit_posts":false,"forum_mod_can_pin_topic":false,"forum_mod_can_edit_titles":false,"forum_mod_can_close_topic":false,"can_vote":false,"forum_mod_can_add_infractions":false,"forum_topic_title_min_length":10,"forum_reply_old_post_threshold":30,"votes_add_max_time":168,"forum_show_post_interval":7,"can_see_deleted_users":false},"section":{"_id":"61c9a54c3df9550077bb51a1","hid":99,"title":"Танки","parent":"61c9a54c3df9550077bb51d1","description":"Обсуждение моделей танков.","is_category":false,"is_votable":true,"is_writable":true,"cache":{"topic_count":951,"post_count":31192,"last_post":"6920019fb4761b70be67ab2e","last_topic":"63c403546371a12da9ba28c1","last_topic_hid":571716,"last_topic_title":"Т-80 лёгкий танк","last_ts":"2025-11-21T06:07:27.476Z","last_user":"4d138ecc3df9550077758626"}},"topic":{"_id":"5abd26d93df9550077cb2074","hid":519637,"title":"Т-44","views_count":6601,"last_post_counter":16,"cache":{"post_count":15,"first_post":"5abd26d93df9550077cb2471","first_ts":"2018-03-29T17:48:09.000Z","first_user":"543171b13df9550077724f84","last_post":"5bf84e063df9550077cb248f","last_post_hid":16,"last_ts":"2018-11-23T18:59:18.000Z","last_user":"543171b13df9550077724f84"},"st":1,"section":"61c9a54c3df9550077bb51a1"},"subscription":null,"pagination":{"total":15,"per_page":25,"chunk_offset":9},"posts_list_before_post":["paginator","datediff"]},"locale":"en-US","user_id":"000000000000000000000000","user_hid":0,"user_name":"","user_nick":"","user_avatar":null,"is_member":false,"settings":{"can_access_acp":false,"can_use_dialogs":false,"hide_heavy_content":false},"unread_dialogs":false,"footer":{"rules":{"to":"common.rules"},"contacts":{"to":"rco-nodeca.contacts"}},"navbar":{"tracker":{"to":"users.tracker","autoselect":false,"priority":10},"forum":{"to":"forum.index"},"blogs":{"to":"blogs.index"},"clubs":{"to":"clubs.index"},"market":{"to":"market.index.buy"}},"recaptcha":{"public_key":"6LcyTs0dAAAAADW_1wxPfl0IHuXxBG7vMSSX26Z4"},"layout":"common.layout"}