биплан для обучения, для боя, для фпв

ZAMolet
a_centaurus:

С “V” на крыле не получилось.

Все таки посоветовал бы сделать угол. Без него неустойчивый самоль будет. Да и крыло в проекции не прямоугольное, а со скошенной задней кромкой.
А почему хочется использовать импеллер?
Удачной постройки

a_centaurus

Alex!
Посмотрел топик по постройке Су-29. Впечатляет. Попробую спросить (наверное уже описано, тогда ссылку, favor): как правильно гнуть депрон. Имеются в виду профили конусных сечений для обьёмных ф. Сам пробовал на оправках труб, грея сверху феном, но чистоты не достиг. Либо перегрев и проплав, либо недогрев и морщение материала. В наличии есть 3 и 5 мм. Кстати, в кипятке хорошо гнуть, да больно неудобно. Имеется heat gun 1600 W. С регулировкой от ЛАТРа.

ZAMolet:

а со скошенной задней кромкой. А почему хочется использовать импеллер?

Про скошенную кромку крыла не понял. Это как? “V” в плане?
EDF или “импеллер”. Это отдельная история, связанная со способом вывода аппарата в заданную точку (апогей ракеты). Это скорее всего будет “всадник”. То есть, ракетный планер, установленный на боковую поверхность бустера. Поэтому EDF хорошо вписывается в концепт общей связки. Вот закончу тренер и приступлю к изготовлению MI_02 (инженерная модель). Дизайн его уже имеется.

ZAMolet

Изгибать потолочку феном, сам дошел до этого, описаний нигде не нашел. Делаю обычно с помощником. Долго объяснять, если бы увидеть понятно сразу будет. Там на фотках видны оправки на которых формую корки. Опытным путем подбираю температуру фена где то около 400 градусов, потолочка предварительно наполовину вставляется в матрицу и прогревается феном до характерного запаха грибов и тогда напарник моментально конусной болванкой вдавливает потолочку причем я ее придерживаю за края что бы обеспечить натяжение на болванке. Грею потолочку с внутренней стороны поэтому все косяки получившиеся остаются внутри. Еще есть некоторые хитрости но это писанины много и уж лучше тогда по этому вопросу в той теме.

a_centaurus:

Дизайн его уже имеется.

Очень интересно.

a_centaurus:

Про скошенную кромку крыла не понял. Это как? “V” в плане?

V-угол крыла, это обычный угол, если смотреть на самолет со стороны носа, а скошенная под углом кромка это когда смотришь на крыло сверху, то законцовки крыла процентов 30 сужаются к концам. Ну или даже полностью крыло с сужением, у меня так на биплане. Просто я увидел что крыло прямоугольное, но это немного не очень.

a_centaurus

А-а-а, genial, это трапеция в плане. Извини, не всегда догоняю язык. Мало практики. Собственно, я видел (вижу) такой т. простым в изготовлении (геометрически простые формы поверхностей для приобретения навыков кроя нового для меня материала - депрона), прочным, медленным в полёте и удобным для начального обучения азам пилотирования. Круги и посадка. Для обучения пилотированию 3Д у меня уже вырезана “слойка” от Olegss (тема parkflyer в Форуме). Дойдут руки, склею и попробую с ней летать. На малых скоростях нет никакой разницы в аэродинамике прямоугольника и трапеции. При небольших удлинениях крыла.
Насчёт гибки понял. Есть ещё метод вальцовки. Вальцы простые из pVC труб. Хотя, вряд ли поверхность и нутро депрона выйдут из таких. в без напряженией и микроразрывов. Знаю по прокатке цветных металлов. А вот с терморазмягчением и болванками скорее всего напряжения перераспределяются по обьёму и исчезают при остывании. Температура на поверхности, конечно меньше 400°Ц. Должна быть не более 100-120°.
Видится какой-то “муфель” (ящик) где обьём воздуха равномерно прогревается и пенопласт осаживается на болван. Надо посмотреть аналоги и подумать.
rcopen.com/forum/f101/topic128637/1001 Вот здесь можно посмотреть первый образец РП с EDF 55. И сообщения о кое-каких простых измерениях данного движетеля на скамье. Нужно было его изучить, прежде чем двигаться дальше. Честно говоря контакт на этой ветке мне не показался ни дружелюбным, ни деловым. Но необходимую для старта работы информацию я получил. Аппарат в том виде, как я его разработал, закончил. Он сослужил хорошую службу. Был разбит об угол дома из-за плохого управления по оси рысканья. А вот таким будет следующий Solaris_RG_02.

ZAMolet
a_centaurus:

Извини, не всегда догоняю язык.

Да нормально все, у меня брат также работает и язык естественно забывается, порой думать начинаешь на другом языке.

a_centaurus:

Температура на поверхности, конечно меньше 400°Ц.

Конечно меньше, это я имею ввиду что тепловой фен я устанавливаю на эту температуру, а до поверхности конечно “долетает” меньше. А при нагреве в муфельной печи будет подплавлятся наружняя лицевая сторона, в данном случае у меня используемая потолочка точно подплавится и мне этот метод немного неподойдет, хотя прогрев и формование будет однозначно лучше, это я согласен полностью.
Ваши мысли по поводу создания импеллерного “всадника” очень интересны, сам немного практиковал с таким движителем, но отошел из за отсутсвия места где можно полетать. Импеллернные модели в большинстве своем скоростные модели и управляются хорошо только на скорости или рули управление нужно ставить в обдуваемую часть т.е. в импеллер и неплохо бы создать управляемый вектор тяги и в добавок ко всему очень хорошое подспорье это механизация крыла.

a_centaurus

Я не просто работаю, я живу. На фирме также английский обязателен. Мы ведь субконтракторы NASA. Ну и других организаций Большого Брата.
Поэтому читаю in english, думаю по русски, а говорю и пишу на castellano argentino.Форумы - средство не потерять язык.

Да, конечно, EDF предполагает изначально использование TVC (thrust vectoring control). Я попробовол вот так (Фото). По тангажу хорошо чувствовал, по рыск. нет. Нужно большие поверхности вводить в поток. Ну и тягу побольше. А на импеллерах летают успешно indoor. Вот такой линк на F22 с TVC. rcpowers.com/…/f-22-ducted-fan-scratch-build-with-…
Вчера после работы успел попробовать тренер на крыле. Сначала в планировании. Планирует нормально, но без хорошего а. качества. Я, кстати, когда начинал проектировать этот с. заложил ему крыло 1 м и площадь 18 дм2. При весе в 360 г получалось 20 г/дм2. Вполне. Но потом чего-то захотел слегка ему подрезать крыло, чтобы начать тренироваться летать во дворе. У нас тут не очень с площадками. Земля privado, да и горы кругом. Получился 28 г/дм2. И это уже маловато будет. Короче не утерпел (а уже стемнело) и вынес аппу. Попробовал дать газ и с. сразу “клюнул” в траву. Вторая попытка с добавлением руля вверх не получилась из-за малости места для полёта (10-12 м до деревьев). Третья и вовсе завершилась глупым происшествием. Поднял с. и понёс его на старт, потерял контроль пульта, который перевернулся на ремешке и зацепил стиком за куртку. Закончилось сломанным проп. и порезами на пальце. Короче, снял всю оклейку с крыла, добавил дырок и заклеил прозрачным скотчем. Остались те же 76 г что и в начале. Но крыло уже изуродовал. И вес стал 390 г. Ровно 30 г стоила виниловая плёнка. Проп. заменил. Сделал максимальный выкос. Градуса 3-4 визуально. Сегодня вечером, если ветер не придёт, попробую. Но крыло уже решил переделать. Вот только не знаю пока из чего. Есть два варианта. 1. Два полукрыла из депрона высокой плотности 10 мм толщиной на карбоновом лонжероне с “V” смонтированных на центроплане из того же материала с коническим обтекателем движка. Профиль делается шлифовкой по обводам. 2. Два полукрыла из депрона 5 мм (средняя плотность) на стрингере из него же, концевыми нервюрами и силовой балкой из карбона (V). Первый вариант мне легче и быстрее сделать, так как есть шлиф. машина и мастерская для такой работы. Второй никогда не делал в депроне, но прекрасно представляю всю технику. И, наверное, было бы полезно попрактиковать на будущее. Что посоветуешь?

ZAMolet

По поводу изготовления крыла посоветую второй вариант, но даже не из за того что он мне может больше нравится, отчасти для практики на будущее. И еще, я ни разу не работал депроном разной плотности и толщиной 10мм и соответственно не зная материала, его свойств и многих других характеристик сложно что либо советовать. Мне в основном приходится использовать потолочную плитку толщиной всего 3мм, по свойствам она вроде как близка к депрону. Из такой потолочки и делается биплан, а крыло там из сдвоенной потолочки.
Скопируйте мой биплан и можно будет летать на ограниченной площадке, он очень устойчивый в полете и для обучения самое оно.
По фото посмотрел, и мне кажется что так управлятся будет вяло. Я бы руль поставил один и в потоке от импеллера, если сложно делать управление самим импеллером.

HSM

Для a_centaurus Относительно управляемого вектора тяги в импеллерных пенолетах рекомендую посмотреть в конструкциях Сергея Александрова(COSH) rcopen.com/forum/f101/topic270404/81. Может чего для себя полезное найдете. Да и самолетки у него очень красивые.😉

a_centaurus

А что, так и сделаю. Наверное ваша “потолочка” соответствует депрону низкой плотности. Такой у меня есть 8 мм. 3-5 - средней. А 10 (самый дорогой) и самый плотный. Лист 90х90 тянет 150 г. Обрабатывается очень хорошо наждачкой без задиров. И очень хорошо держит на изгиб. Хотя слойка по любому - прочнее. Да и легче. Биплан у тебя шикарный. Обязательно повторю. У меня много идей, а времени почти нет. Дорога и работа на неделе всё сьедают. А выходные надо и по дому и по усадьбе работать. Чай своё, не колхозное. Руль (рули) в поток. Именно так. Вот такая ступа б.Яги, на самом деле меня интересует. (Это современное направление для дронов на импеллерной тяге) (макетик мой). К нему иду. Но, через традиционные формы.

HSM:

Для a_centaurus Относительно управляемого вектора тяги в импеллерных пенолетах рекомендую посмотреть в конструкциях Сергея Александрова(COSH) rcopen.com/forum/f101/topic270404/81. Может чего для себя полезное найдете. Да и самолетки у него очень красивые.😉

Спасибо! Знаю, конечно, его аппараты. Изучил все его модели и даже пытался написать на личку. Не отвечает. У меня нет недостатка в инфе. Нужно общение в контакте. Чтобы быстро пройти начальный этап. С другой стороны, сразу скажу, что модельные хитрости и повторения известных самолётных схем мне не нужны. Другая задача и другие технологические решения. Хотя много общего. Прежде всего - аэродинамика малых скоростей и размеров.

a_centaurus

Вот, собственно, всё и закончилось. Даже у ракет жизнь дольше, если парашют не подвёл. Сделали (сын помог в управлении) две попытки во дворе. Не стал ставить боковую панель и довёл вес до 370 г. Выкос максимальный (4º). В первой поняли, что самоль тащит вверх. Но решили попробовать ещё раз. Пошёл вверх, не слушаясь руля… Падение с метров 10 “морковкой” вниз. Фюз. разлетелся на 3 части от удара. Сломался проп. Всё остальное цело. Крыло с креплением на резинке просто отлетает. Ладно, “Король умер”, будем делать другого. Жалко половину крыла вчера собрал для этого. Самое время попробовать твой биплан, Алексей. Вот только винта (7х5?) у меня нет. Придётся либо делать, либо заказывать и ждать. Собственно пытался уже сделать проп. из карбона на деревянной ступице. Но с плоскими лопастями 6х5 дал тягу меньше чем 6х3 коммерческий. Может, конечно, ошибся в углах. Стоит попробовать ещё раз. Винт лёгкий получается, всего 2 г. И изготовление простое. 20 минут и готово. Но… не берёт… Аэродинамику не обманешь.

ZAMolet

Жаль конечно что так получилось, честно сказать я хотел было предупредить что вряд ли он нормально полетит, намеки правда я делал, говоря что и профиль нужен и угол крыла. Да и вообще мне не очень по душе однобалочные системы с толкающим винтом. По крайней мере у меня было с десяток экспериментальных моделей, среди них были и повторенные по чертежам, скажу так мне непонравилось их поведение особенно на малых скоростях. И только когда построил этот бипланчик, все встало на свои места. Тоже конечно не обошлось без экспериментов, но по крайней мере все проблемы были на лицо и “лечились” моментально. Так что если надумаете делать, мой вам совет, повторите эту конструкцию, как есть не внося ни чего своего, поймете как он летает, а уж потом воля ваша делайте что хотите с ним. По крайней мере увидите разницу до и после переделки. И мне в принципе очень интересно посмотреть.
Да, кстати а где обещанное видео полета, концовку на фотке я вижу, но полет все таки ведь был. 😃

zxcv875
ZAMolet:

Наконец то удалось немного позаниматься бипланом.
Первое что сделал, это слегка изменил чертеж, давно хотел кое какие моменты переделать. Вот фото чертежа, посмотрим как полетит биплан сделанный по нему.

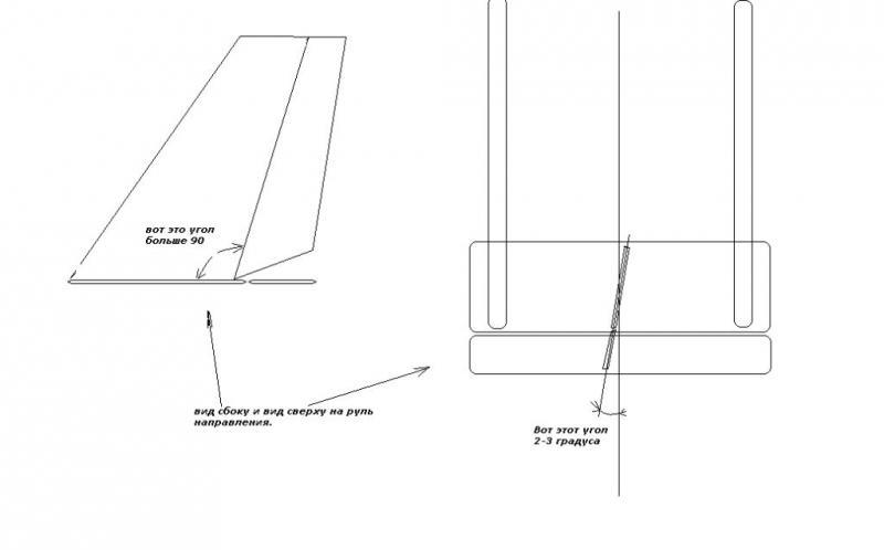
Алексей, а сам чертеж можно выложить? И второй вопрос - вы говорили что РН надо под углом ставить, а на фото в сообщении 296 вроде угла нет?

ZAMolet

Про угол постановки можно увидеть в этой же ветке вот здесь rcopen.com/files/51a7000f9970730077bc2304 , имеется ввиду когда смотришь сверху на стабилизатор, то рудер стоит не по прямой, а под небольшим углом.
По поводу чертежа он чуть выше на фото здесь rcopen.com/files/51fd590d9970730077bc6362_sm , распечатал чертеж и прямо на нем перерисовал немного. Но и его уже нет, отослал по просьбе.
Изменения совсем небольшие, но почему то всегда хотелось сделать, вот сейчас и пробую.
Кстати, Рафик а где видео полета? А то только фото красивого бипланчика видели и все.

zxcv875

[/QUOTE] Кстати, Рафик а где видео полета? А то только фото красивого бипланчика видели и все.[/QUOTE]

Видео было, но нечаянно форматнули карту в фотоаппарате. А Бипланчик погиб в неравном бою с ветром 😃 После морковки невыдержал фюзеляж и распался на составляющие 😃 Сейчас времени нет восстановить, позже восстановим.

zxcv875
ZAMolet:

Сочуствую 😦

Точнее, серва РН в воздухе накрылась (китайское чудо) и он вошел в неуправляемую спираль, усиленную ветром. А так летал ЗДОРОВО!!!

KeyM
zxcv875:

А так летал ЗДОРОВО!!!

Вот за это спасибо! Как раз не хватало творческого вдохновения на досборку биплана, а разговоры про импеллер как-то тому не способствуют. Буду сужать круги и подбираться ближе к нарезанным заготовкам.

ZAMolet
KeyM:

Буду сужать круги

А что вокруг него ходить кругами, склеил и в полет 😃

zxcv875:

А так летал ЗДОРОВО!!!

Да так и должно быть, правильно сделанный биплан, покоряет своей простотой управления, устойчивостью. Буквально сегодня летали, жаль с собой фотика не было, несколько таких бипланов, причем пару человек вообще никогда не летали и первы раз попробовали. Результат самолетики целые, у народа море эмоций после полетов.

Alibaba

в выходные выдалась погода, немного полетал, но в конце все-таки зацепил дерево, винт не нашел. по маленьку учусь. дело в том, что крылья у меня все разные, нет подходящей трубы на чем их делать, чтоб одинаково получилось. поэтому его уводит. сейчас все подрезал и выправил. погоду пообещали. какой винт поставить, у нас только хобби-маркет, самому делать времени нет. стоит ли сделать крылья по другой технологии, ну например, наборные. по времени дольше, но можно сделать все очень симметрично.
сделал  ultimate размах 70 см, еще не пытал, вес получился 470 г, это много, площадь крыла 24 кв.дм?

ZAMolet
Alibaba:

самому делать времени нет.

С удовольствием бы помог сделать, на моей приспособе делов пять минут, но расстояние.
А трубу и не обязательно, есть еще варианты, например самое главное сделать первое крыло, подложив что-нибудь в самом высоком месте, все это сделать на столе, после этого закрепить крыло малярным скотчем к столу и на этом же крыле используя как оправку сделать другие крылья, можно даже не убирать слой за слоем так и пусть сохнут, профиль будет одинаковый.

Alibaba:

вес получился 470 г, это много, площадь крыла 24 кв.дм?

Нормально. Нагрузка на крыло при таких данных 19,5 гр/дм это можно сказать планерная.

a_centaurus
ZAMolet:

По крайней мере у меня было с десяток экспериментальных моделей, среди них были и повторенные по чертежам… И мне в принципе очень интересно посмотреть.
Да, кстати а где обещанное видео полета, концовку на фотке я вижу, но полет все таки ведь был. 😃

Отвечаю после выходных. Вот видишь, сам написал, что после десятка построек… А ведь и я “сам такой”. Я признаю и люблю исследовать чужой опыт и использовать его, но… знаю и верю, что единственная форма стать мастером в деле - делать собственные ошибки и их исправлять, добиваясь совершенства. В ракетной технике, в числе первых неписанных законов есть такой: “если у вас всё получилось с первого раза, значит вы плохо смотрели…”. Поэтому, разбив первый тренер и уже начав делать крыло по обьёмной технологии, решил сделать следующий т. по результатам КДИ (конструкторско-доводческих испытаний). Поняв, что мне ещё нужно научиться уважать культуру веса конструкции в рамках необходимой прочности при заданном лимите тяги. С другой стороны, нужно пройти несколько базовых техник в конструкции, использующей ячеистые материалы (депрон и прочие пены). Научиться рефорсировать их. Но без потери самого важного преимущества - малого веса.
Конструкция крыла (1 м) в общем-то в рамках общепринятых у вас схем. В авиастроении и технике композитных конструкций, называется кессонной. На нижную панель крыла 5мм приклеены два лонжерона, а между ними - карбоновый стрингер. Два стрингера в сечении центроплана собраны на карбоновом основании формы “V” с углом ок 6°. Верхняя панель 3 мм с прокатанным профилем клеится сверху. Устанавливается на деку ф. с силовой установкой. Стаб. склеен из панелей 5+3 с прокладкой карбоновых стрингеров треугольником. Основные изменения коснулись ф. Его конструкция комбинированная: панель (та же выкройка, но “похудевшая” с боков) депрон 10 мм высокой плотности усилена вставкой из бальсы 10х3 по хвостовой балке и такой же “лыжей” по нижнему контуру. Это позволило получить лёгкую и прочную конструкцию, с хорошой защитой от перегрузок при падении. Пока, в куче, вес будущего аппарата не превысил 320-350 г. При существенно большей площади крыла. Если интересно, могу выложить фотки. Кроме того, сделал очередную попытку собрать винт. Материал: лопасти: стеклотекстолит G11, 0.5 mm профилированный горячим способом. Ступица - сосна пропитанная цианакрилом. Размеры 180мм х 4-5". Отбалансировал, но пока не пробовал.
А твой б. решил перевыпустить в AutoCAD и распечатать на плоттере 1:1. Это удобнее и быстрее, чем возиться с перерисовкой на материале. Мне ведь эту конструкцию по-любому нужно адаптировать на мои материалы. Кстати, я полностью согласен с твоим мнением о нестабильности моноплана с толкающим в., но… раз уж поднял крест, его надо донести.
Видео опять не получилось снять. Хотел попробовать, отбалансировать, а тогда снимать.

ZAMolet
a_centaurus:

раз уж поднял крест, его надо донести.

А если уж ясно что нести ненадо, можно и положить… 😃 , а еще лучше повесить на стенку и пусть радует глаз.

a_centaurus:

Видео опять не получилось снять

А вот это жаль…
А у этого винта, который на фото, есть хоть какой-нибудь профиль, необходимая крутка., а то мне кажется КПД очень низкое. Мне кажется он больше будет потреблять чем отдавать.

a_centaurus

Сердцем понимаю, но… мозг так настроен. Надо завершать начатое. Хотя бы для опыта. И ещё. Я ведь не моделист, и сам полёт аппарата меня интересует постольку-поскольку. Сделаю, в конце концов и будет летать, но главное, наберу по ходу технологий и знаний для конечной задачи.
Проп. имеет крутку и профиль (простой цилиндр). Предыдущий с плоскими лопастями и шагом 5 давал 240 г тяги, тогда как HK 6х3 - 300г. У этого диаметр побольше, а шаг поменьше. Попробую на самол., когда соберу.
А пока заказик HK собираю. Те же винты. У нас через Hong Kong идёт. Две-три недели. А пока твой биплан начну. Мне он, как конструктору, нравится своей технологичностью и модульностью. Спасибо за добротную работу и за внимание.

ZAMolet
a_centaurus:

профиль (простой цилиндр).

С цилиндром непонятно, вроде ка кдолжен быть как минимум плоско-выпуклый, тем самым при вращении на передней плоскости винта создается область низкого давления.

a_centaurus
ZAMolet:

С цилиндром непонятно, вроде ка кдолжен быть как минимум плоско-выпуклый, тем самым при вращении на передней плоскости винта создается область низкого давления.

Ну, как аэродинамическая поверхность, боковое сечение ц. экивалентно тонкому вогнуто-выпуклому профилю. Идея-то была сделать винт с лопастями из листа, а не формовать их. И получить винт немного хуже профилированного но по быстрой и дешёвой (для меня) технологии. Так сказать - учебно-тренировочный. Пока готовый не придёт. С китайцами я не собираюсь соперничать. Касаемо твоих эскизов. Сижу и перевожу в AutoCad. Проблема в их абсолютной отвязанности от реальных размеров твоего самоля. Не мог бы ты мне дать, пожалуйста, размеры последней версии: размах крыла, длина ф. общая и высота в макушке, чтобы сделать пропорции в чертежах. Остальное вытяну из фотографий.