Тренер с нуля - первые шаги

V45

Добрый день!
Вот, решил построить тренер-самолет с нуля. Почему с нуля - потому что не нашел ни одного чертежа действительно самолета - тренера. Те, что идут под заголовком “тренер” с разными вариациями на мой взгляд это несколько усеченные пилотажные модели. Во всяком случае такой вывод можно сделать, если проанализировать их пропорции по известной всем номограмме. Коэффициент продольной устойчивости у них (по памяти) не превышает 40, а обычно 30 и даже 20.
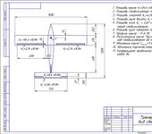
Пока пропорции тренера такие (см.прикрепленный файл). Другими словами - это что-то среднее между самолетом и мотопланером. Профиль крыла 15% (скорее всего NASA 2415). Стабилизатор идет за килем (киль впереди). Моторчик порядка 6,5-7,5 куб.см. Нагрузка на крыло порядка 60 г/кв.дм. Поперечное V-крыла 0 - 3 градуса на каждое крыло (еще думаю). Да, прошу извинить - размеры на эскизе поставлены в сантиметрах.
Что скажете, коллеги?

Prophead

А чем традиционные ARF-тренера не устраивают ? О какой номограмме идет речь ? Если из книги Вилле “Летающие модели-копии”, так согласно нее многие модели вообще летать не должны…

V45

> А чем традиционные ARF-тренера не устраивают ?

  • А надолго ли его хватит, этого самолетика из набора? ИМХО, 1-2 полета. А без умения делать своими руками прийдется платить и платить.

>О какой номограмме идет речь ? Если из книги Вилле “Летающие модели-копии”, так согласно нее многие модели
> вообще летать не должны…
Я бы не стал хлопать классиков по плечу. Что-то не заметил на форуме разбор этой книги, и достоверность номограммы в частности, наоборот - цитирование, хотя бы и на этом сайте.

Prophead

Хватит надолго, если сразу не разобьете 😁 Я не предлагаю покупать, просто взять и обмерить как прототип.
По поводу номограммы - Вы сами упомянули полученные цифры. При этом большинство моделей-тренеров благополучно
летает.

V45
Prophead:

Хватит надолго, если сразу не разобьете 😁 Я не предлагаю покупать, просто взять и обмерить как прототип.
По поводу номограммы - Вы сами упомянули полученные цифры. При этом большинство моделей-тренеров благополучно летает.

-----------------------------------
Я думал над этим - взять, например вот такую модель www.owl-ltd.com/model_dolphin.htm и обмерить. Но, потом подумал, что правильнее будет самому разобраться, как это все делается.
Ну а по существу - вопросы, выводы по компановке? Как он будет вести себя в полете?
Cтабилизатор, видимо, буду делать шире (удлинение 7), и профиль крыла, возможно Clark-YH 15%.

Prophead

По существу - скачайте Airplane Design Calculator для Excel.
Там указаны рекомендованные пропорции, заодно свой дизайн прикинете.

V45
Prophead:

По существу - скачайте Airplane Design Calculator для Excel.
Там указаны рекомендованные пропорции, заодно свой дизайн прикинете.

Зачем нам буржуинское. У нас свое есть www.rchobby.kiev.ua/index.php?go=Afisha&in=view&id…
“Геометрические параметры радиоуправляемых моделей”. Понятно и доступно.

Prophead

Это перепечатка с “буржуинского” сайта… 😁

V45
lelik:

Это не подойдет?

Спасибо. Я эту страничку уже видел. Видимо, я не совсем ясно сформулировал свою мысль - я хочу понять, как спроектировать и построить р/с модель, а не тупо собрать набор. Посмотрев чертежи из журнала “МК” понял, что они меня по ряду причин не устраивают. Ниже привожу измененую компановку своего проекта тренера. Собственно, в настоящий момент мне больше важна технологическая сторона вопроса, как правильно сделать тот или иной узел.
Что касается Airplane Design Calculator для Excel - то это на любителя. Мне интереснее понять, как выводится та или иная пропорция, а не тупо подставлять цифры. Да и исходные данные в этой таблице типа “нагрузка унций на квадратный фут” - это тоже на любителя. -)))))

Д_Заточник

А кто мешает для себя любимого разобраться в Экселе и переделать унции на квадратный фут в граммы на дециметр? А заодно и дюймы в миллиметры?
Скачать из сети кучу мануалов по сборке китов. Там и технология, и конкретные узлы. Информации более чем достаточно будет. Опять же изучать чужие чертежи не грех, там люди много чего уже придумали, осталось только воспользоваться.

V45
Д_Заточник:

А кто мешает для себя любимого разобраться в Экселе и переделать унции на квадратный фут в граммы на дециметр? А заодно и дюймы в миллиметры?
Скачать из сети кучу мануалов по сборке китов. Там и технология, и конкретные узлы. Информации более чем достаточно будет. Опять же изучать чужие чертежи не грех, там люди много чего уже придумали, осталось только воспользоваться.

----------------------
Да разобрался я. Там, прежде чем что-то переделывать нужно было пароли на каждой странице снять. И снял.
Кстати, сделана она не совсем корректно, есть величины которые идут как переменные, а в формулах - это уже констатнты. Только прога эта в Екселе мне пока не нужна, потому и не переделываю. А кучу мануалов я есно скачал. И на проектирование, и на сборку, и даже прототипы. Что изучаю и чем пользуюсь. А что, в предлагаемой компановке есть что-то такое, что дает думать, что модель не полетит? 😃
А если ответите на вопросы буду признателен.

  1. Вопрос такой - углы поворотов рулей высоты и направления рекомендуют выставлять на определенное число градусов и не более того. А как собственно реализованое это решение в р/у моделях? Механических ограничителей я что-то не видел.
SAN

А что, в предлагаемой компановке есть что-то такое, что дает думать, что модель не полетит?

Да полетит она, куда ж она денется… 😃
Также как и тренеры из МК и т.п.

как собственно реализованое это решение в р/у моделях?

Подбором плечей качалок РМ и кабанчиков на рулях, а также настройка расходов в передатчике.

V45

>Да полетит она, куда ж она денется… 😃
>Также как и тренеры из МК и т.п.

  • Да есно будут летать модели из МК, я просто несколько увеличил продольную устойчивость тренера, в сравнении с прототипами, увеличив плечо хвостового оперения, только и всего. Ну и поперечное V-крыла 2-3 градуса на каждое крыло - это будет видимо вполне достаточно. Хотя подмывает сделать 0 градусов, проще. Что скажет почтенная публика?

Подбором плечей качалок РМ и кабанчиков на рулях, а также настройка расходов в передатчике.
[/quote]
Предварительно остановился вот на такой модели передатчика Futaba 7CP-R137F-S148/3-F40P2DD http://rcdrive.ru/search.php?action=search…mp;producer_m=4

  • кто/нибуть с ней работал, какие отзывы?
Д_Заточник

Честно говоря, как там в большой авиации с градусами рулей - я не знаю. А в РУ моделях примерно так: крутится как вентилятор - уменьшаем расходы. Вяло реагирует - увеличиваем. О тонкостях поведения, типа скручивает при резком и сильном отклонении руля высоты поговорим потом. Как это сделать технически сказано в предыдущих постах.
Странно, что там все запаролено… В моей версии никаких паролей не было. Потрахался только с шириной столбцов, чтобы по русски влезло.

Можно и нулевое V сделать. Летать будет чуть по другому, и все. Скорее всего на первом этапе различий не заметите. Придется больше ручками корректировать, а самолет как был тренером, так им и останется.

V45

>Честно говоря, как там в большой авиации с градусами рулей - я не знаю. А в РУ моделях примерно так: крутится >как вентилятор - уменьшаем расходы. Вяло реагирует - увеличиваем. О тонкостях поведения, типа скручивает при >резком и сильном отклонении руля высоты поговорим потом. Как это сделать технически сказано в предыдущих >постах.
А насколько и как наклонять двигатель? Сразу чуть влево и немного вниз (и сколько?) или это как-то настраивается потом? Интересую методика и детали настройки.

> Странно, что там все запаролено… В моей версии никаких паролей не было. Потрахался только с шириной >столбцов, чтобы по русски влезло.
Что есть, то есть. Только зря это. Пароль с любого приложения Микрософт влет снимается. Там на каждой странице стоял пароль на защиту от изменений формул, текста. Исходные данные можно было вводить. Я сначала снял пароли, а потом подумал, а зачем. Лучше по книжкам. Да там то и данных немного. Точно все равно не считаем, а приблизительно - достаточно нескольких правил. Работы минут на 15.

>Можно и нулевое V сделать. Летать будет чуть по другому, и все. Скорее всего на первом этапе различий не >заметите. Придется больше ручками корректировать, а самолет как был тренером, так им и останется.
другими словами при нулевом V модель будет несколько более поперечно неустойчива?

SAN

Ну и поперечное V-крыла 2-3 градуса на каждое крыло - это будет видимо вполне достаточно. Хотя подмывает сделать 0 градусов, проще. Что скажет почтенная публика?

Видите ли, даже при наличии V в неск. градусов самолёт сам НЕ успевает, как правило, восстановить горизонтальный полёт до встречи с землёй.
А при размахе в полтора метра он у вас и при нулевом V будет плавно реагировать на элероны.

Д_Заточник

Вообще-то все приходится настраивать потом. Но сразу можно сделать выкос вправо 2 градуса, вниз я никогда не выкашивал, но у меня и модели специфические, там все по “нулям”. А если это тренер с несущим профилем, то от 1,5 до 3 градусов вниз можно выкосить.
Да, при нулевом V модель будет несколько более поперечно неустойчива. Но уверяю Вас, Вы эого даже не заметите.
Мой вам совет: возьмите готовые провереныне чертежи и соберите по ним тренера. Сразу отпадут многие вопросы по технологии. А после получения начального опыта постройки можно и за конструирование своего браться смело.

rckurgan

Категорически приветствую!
Год назад я тоже мучался - как построить самому?
В магазинах можно купить всякие-разные!
Но так уж захотелось.
И … построил!!!
Летает!
Долго искал чертежи тренера.
Нашёл.
Ссылка на сайтик с чертежами : www.sam-sebe-aviamodel.narod.ru/p4.htm

А вот чертежи моего Самика

И то, что получилось!
ДВС OS MAX . 25 FX
Можно было поставить и помельче.
Сильно уж он дикий.

V45

>Мой вам совет: возьмите готовые провереныне чертежи и соберите по ним тренера. Сразу отпадут многие вопросы >по технологии. А после получения начального опыта постройки можно и за конструирование своего браться смело.
-----------
Вы наверно имели ввиду не чертежи, а готовые наборы? Готовых чертежей у меня много. У товарища есть готовая модель - пример. А вот технологии: как правильно зашить кесонное крыло; как правильно собрать крыло, фюзеляж и прочее; как правильно выставить мотор; как расположить топливный бак и т.д. и т.п.- готовые чертежи это не дадут, только опыт, свой и чужой. Вот изучаю форум, сайты… Кое-чего из деталей уже заказал (винтомоторная группа, колеса, качалки, кабанчики и т.д.). Пока мне жалко платить порядка 4000 руб за набор дерева.

Д_Заточник

Чертежи плюс описание, как собирать КИТ. Хотя бы у той же СОВЫ посмотреть. Очень толково описано, и на русском. К сожалению, вынужден Вас огорчить: на круг бальза, мелочевка, пленка и пр. выйдет не дешевле, чем кит или арф.

V45
rckurgan:

Категорически приветствую!
Год назад я тоже мучался - как построить самому?
В магазинах можно купить всякие-разные!
Но так уж захотелось.
И … построил!!!
Летает!
Долго искал чертежи тренера.
Нашёл.
Ссылка на сайтик с чертежами : www.sam-sebe-aviamodel.narod.ru/p4.htm
А вот чертежи моего Самика
И то, что получилось!
ДВС OS MAX . 25 FX
Можно было поставить и помельче.
Сильно уж он дикий.

Спасибо за помощь. Вот это по нашему, по бразильски! -))))))))))))
Примерно такой же и я хочу построить. Только несколько больший, по ASP 0.46

>Чертежи плюс описание, как собирать КИТ. Хотя бы у той же СОВЫ посмотреть. Очень толково описано, и на русском. >К сожалению, вынужден Вас огорчить: на круг бальза, мелочевка, пленка и пр. выйдет не дешевле, чем кит или арф.
Да с Совы я и взял прототип, Дельфин называется. Оттуда же и описание оного.

Sunman

Пока мне жалко платить порядка 4000 руб за набор дерева.

А есть и за 3 косаря набор тренерских деревяшек 😛

toreo
V45:
  • Да есно будут летать модели из МК, я просто несколько увеличил продольную устойчивость тренера, в сравнении с прототипами, увеличив плечо хвостового оперения, только и всего.

А какие меры будут предприняты для устранения задней центровки?

toxa
V45:

А вот технологии: как правильно зашить кесонное крыло; как правильно собрать крыло, фюзеляж и прочее; как правильно выставить мотор; как расположить топливный бак и т.д. и т.п.- готовые чертежи это не дадут, только опыт, свой и чужой. Вот изучаю форум, сайты… Кое-чего из деталей уже заказал (винтомоторная группа, колеса, качалки, кабанчики и т.д.). Пока мне жалко платить порядка 4000 руб за набор дерева.

Собственно, вы заплатите не за “набор дерева”, а за ответы на _все_ перечисленные вопросы. Кстати, не 4000, а значительно меньше.