Начал с крыла...

Кузя
Александр_АГ:

А бутылки от пива, те что больше двух литров тоже не подходят ? 😃

Угу
Я прикидывал И-16 у него при размахе 900мм диаметр фюза около 150мм вот такой вот самолётик.

Александр_АГ

Тогда можно сделать так. Капот у нас идеально круглый, это уже хорошо!
Вырезаем из потолочки-депрона три четыре кольца образующие переднюю его часть. Одно или два кольца должны быть меньше в диаметре на толщину плёнки-лексана.
Склеиваем кольца и скругляем переднюю фаску капота как у оригинала. Затем приклеиваем полоску заготовку обернув вокруг более тонких колец . Должно получится заподлицо.

клишник

То, что у меня получилось - уже не И16.Бытыли от “Толстяка” 5-7 литров - это уже для модели паровоза).Центровка 20-25% не издевайтесь,это невозможно вообще(акк должет быть впереди пропеллера).Я читал 30-32 нормально.

Кузя:

Тут в этой теме ссылоча есть вы посмотрите там еть помпоновка и с липо акком получается даже лучше.
Провильная центровка 20-25% от ширины крыла.

Имеете ввиду этот летающий пончик? www.rcgroups.com/forums/attachment.php?attachmenti…

boroda_de
клишник:

Центровка 20-25% не издевайтесь,это невозможно вообще(акк должет быть впереди пропеллера).Я читал 30-32 нормально.

Не там читали. 30-32% это не для полукопии истребителя а для 3D плосколёта.
И-16 из-за короткой морды в маленьком масштабе очень непрост в смысле центровки.

Кузя
клишник:

Имеете ввиду этот летающий пончик? www.rcgroups.com/forums/attachment.php?attachmenti…

Нет вот эту летющую крысу более подробно есть тамже где то рядышком с “пончиком”
Точнее акк размещён между первым и вторым шпангоутом или перед передней кромкой крыла поперёк фюза, правда ваш акк врятли там поместится а вот липо встанет в лёгкую.

boroda_de:

Не там читали. 30-32% это не для полукопии истребителя а для 3D плосколёта.
И-16 из-за короткой морды в маленьком масштабе очень непрост в смысле центровки.

Полностью с вами согласен
как бы не 15% пришлось делать.

Gura

Там даже картиночка имеется…

клишник

Вобщем я в тупике.С акком в 8 банок очень тяжёлый получается,40гр\дм.кв. С 2 х баночным ЛИ ПО центровка не получится,лёгкий очень.И главное от 7 вольт регулятор скорости мотор не запустит.Если 3 банки,то может быть,но это ж 11 вольт!А мотор мой на 7.Думаю удлиннить нос,сделать длинный капот и поставить ЛИПО и бесколекторник.(как я уже писал, от похожести на И16 я уже отказался)

ukkr

Что-то Вас не понять. Вы пишете, что мотор на 7 вольт, но

от 7 вольт регулятор скорости мотор не запустит.

Попробуйте всё-таки поиграться с центровкой и 2мя липо. Можно ж и машинки\приёмник подвигать вперёд-взад. На худой конец, с грузиком полетать. Просто при той нагрузке, что у Вас, да с такой задней центровкой есть большие сомнения, что Вы сможете хотя бы взлететь. Я уж боюсь говорить о развороте после взлёта. 😵

Ещё бы я попробовал увеличить площадь крыла( чтобы уменьшить нагрузку), да так, чтоб и основная масса крыла была бы сдвинута к передней кромке( для игры с центровкой, если это получиться и не приведёт к неприятным эффектам во время полёта).

клишник
ukkr:

Что-то Вас не понять. Вы пишете, что мотор на 7 вольт, но

регулятор от другого мотора,на 9.6В .

ukkr
клишник:

регулятор от другого мотора,на 9.6В .

Тю, так а что он автоматом не определяет входное напряжение напряжение и не заводится от 7 вольт? 😃

Sevod
клишник:

(как я уже писал, от похожести на И16 я уже отказался)

Может все таки стоит по готовым чертежам что нибудь построить?

ukkr
клишник:

а кто ж его знает 😃

Мануал и гугль с вероятностью 99% прольют свет на эту проблему. Хотя я думаю, что он должен без проблем завестись на 2х липах. Попробуйте подрубить его к 7ми вольтному источнику, ничего ему не должно быть от этого

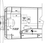
А-50

Попробуйте скомпановать нос как на фото.
Поможет решить проблему центровки

Sevod

Судя по виду аппарат убойный 😃 А замена акков не предусмотрена? Только зарядка?

клишник
А-50:

Извиняюсь.
Вот фото

остроумно и красиво!Я тоже думаю в этом месте акк разместить.Только не так ажурно.Кстати,Это бесколлекторник с банками NI-MH? А я думаю наоборот сделать, 400 мотор с LI-PO.Да,А чей это такой самик?Хочется его всего увидеть.

skazochnik_333
клишник:

регулятор от другого мотора,на 9.6В .

Интересный рег какойто у вас он что не програмируется?
вы хоть напишите что за рег.

клишник
skazochnik_333:

Интересный рег какойто у вас он что не програмируется?
вы хоть напишите что за рег.

Не програмируется,это точно.Вот он.Если что то о нем знаете - интересно послушать.

skazochnik_333
клишник:

Не програмируется,это точно.Вот он.Если что то о нем знаете - интересно послушать.

Не не програмируется это точно и не автомат в общем как всё в РТФ по минимуму.
И вообще могли бы и сами на сайт производителя слазить.
ЗЫ
По моему гром давно грянул, порабы и перекреститься, тоесть всётаки нормальную силовую установку приобресть.

клишник
skazochnik_333:

И вообще могли бы и сами на сайт производителя слазить.

Лазил.Там таких уже нет.Поэтому и спрашиваю

А-50

Вот и весь И-16. Фото из RC revue - отчет с фестиваля, организуемого Мега Мотор. Модель была отмечена за оригинальную компановку СУ. В ней комплесно решены проблемы центровки, веса и охлаждения.

Кузя
клишник:

Лазил.Там таких уже нет.Поэтому и спрашиваю

Так вам и ответили

skazochnik_333:

Не не програмируется это точно и не автомат в общем как всё в РТФ по минимуму.

В общем, наверое действительно гром грянул пора креститься 😃
ЗЫ
Вообщето дело конечно ваше.
Посто, тока не ругайтесь, с липо и бк и доска полетит.
Видел как летает модель размахом 900 и нагрузкой гдето 50г ан квдм.
Летает и пилотаж крутит и батарейку 3S2100 за 5минут сжирает.

клишник

сипотяшка)Зачем я специально купил 400 с редуктором??Всеравно придется на безколлекторник переходить.Это единственный путь к нормальным полетам.

А вот еще вопрос.Уменя тяжелый зад получился из за слишком большого хвостового оперения,и в частности стабилизаторов с РВ.Может в полете они не будут перевешивать в сторону задней центровки?Это ж почти крыло и тоже подъёмную силу создаёт на хвосте?