Проект "Бармалей"

slavatb

Можно попросить фотки или схему трансмиссии с планируемой коробкой передач?

mcmixer

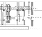
Фото нет, есть набросок чертежа-схемы

carrtman
DrDenis:

с вашей компоновкой центр тяжести поднимется даже выше колёс

выше колес? а у какой трофийной шаськи он ниже колес? у всех акки на раме лежат, это нормально, а что бы шаська постоянно заваливалась на бок акк нужно положить на крыше, а лучше еще сантиметров на 10 поднять выше нее:) плюс никто не отменял прямые руки при вождении, и еще, когда, как бы трофийная модель держит крены под 60градусов, это уже луноход получается какой то, тогда давайте и колею расширять до 30см, тогда вообще не перевернется…

mcmixer:

с целью защиты от влаги

акку, тем более гидриду глубоко пофиг на воду, а вот регуль и приемник надо однозначно герметить, как и чем не раз обсуждалось, ничего сложного нет

slavatb

Ну да, обычная коробка. Есть один момент: изготавливая коробку на коленке, очень трудно обеспечить и зазоры в шестернях, и отсутствие люфтов. Поэтому стоит выбирать шестерни с большим модулем, у них больше свободы по зазору. Чертеж в части узла мотор-спур-пиньон добавляет сложности и требований к точности, проще и надежнее использовать отдельный редуктор и соединить его карданом с коробкой

carrtman:

и еще, когда, как бы трофийная модель держит крены под 60градусов, это уже луноход получается какой то, тогда давайте и колею расширять до 30см, тогда вообще не перевернется…

Акк действительно высоковато. Что есть какой-то кайф, когда аппарат кувыркается? Почему бы не побороться за устойчивость, это необязательно должно быть в ущерб копийному виду

Skodnik

и акк, и мотор высоко. разместить их как можно выше с целью защиты от луж - не самый правильный вариант. присоединюсь к предыдущим ораторам на тему смещения и герметизации.

по поводу категоричности

Я ничего менять не собираюсь, ибо схема была просто выстрадана за год

  • “волгу” тоже 30 лет выстрадывали, и где сейчас ГАЗ? для себя же делаешь… если люди дают дельные советы, может, стоит на них обратить внимание? 😃

Есть один момент: изготавливая коробку на коленке, очень трудно обеспечить и зазоры в шестернях, и отсутствие люфтов.

сверлильная стойка для дремеля, дремель, прямые руки, глаза и чуть-чуть матчасти - никакой магии - необходимые зазоры цилиндрическому редуктору обеспечены:) но это только при наличии стойки либо сверлильного станка - держа дрель в руках не просверлить однозначно. не раз проверено.

Поэтому стоит выбирать шестерни с большим модулем, у них больше свободы по зазору

+1. точнее, меньше требований к точности по геом. параметрам при изготовлении передачи.

вопрос к автору проекта - чем обусловлен выбор такого количества зубьев? можно было бы взять меньше при сохранении передаточного числа…

mcmixer:
  1. Каковы параметры стандартного двигателя на 27 витков (крутящий момент, максимальные обороты)?

посмотри движки на рц4вд. у них для всех моторов дано кол-во оборотов без нагрузки и для 80Т - момент. одна незадача: самое малое кол-во витков у них 35. ну да интерполяцию никто не отменял 😃

slavatb

В дремель, положим, сверло под посадку подшипника не влезет. В любом случае, лучше делать крышки коробки на нормальном сверлильном станке коротким сверлом. Насколько я понимаю, не у всех шестерен предусмотрена посадка на валу, и сами валы 3мм, а в них еще проточки под муфты зацепления делать. Выбрано все это по принципу наличия ненужного барахла, насколько я понял.
Я бы перешел на 5 мм валы и зубастые пиньоны для 8-го масштаба, на порядок задача упростится

mcmixer

По поводу выбора шестерен - действительно, по принципу - что нашли
Кто внимательно посмотрел набросок чертежа КПП - там дейтсвительно валы диаметром 5 мм, выходной придется протачивать на 3 мм

Выход на токарный и сверлильный станки в наличии, однако проблема в сверлах, резцах, материале и времени …

Теперь обращаюсь к тем, что живет в центральных городах России.
Да, у вас есть магазины, в которых можно купить то и это, можно потрогать руками, можно потом продать кому-нить, можно вначале потрогать, потом заказать в Инете …

А у нас, вот хорошо в нашем городе есть !один! магазин, но он больше направленности “на себя”. Только с появлением дрифтеров-автомобилистов что-то еще в наличке можно увидеть …
Остальное - только через Инет …
К примеру тюннинг своей шоссейки делал на посылках исключительно с StellaModels.ru (не реклама) - потому что в других магазинах !НЕТУ!, и никогда НЕБЫЛО, хотя в прайсе есть, и навряд ли будет …
Вот …

А накупить запчастей и из них собрать проект - дык были бы деньги …
Повторюсь - остались запчасти, которые было жалко выкидывать, продавать, отдавать - и понеслось …

По проекту - опробовал станок-электролобзик (пилка как на ручном, который дугой и с ручкой), выпилил заготовку для нижней деки, приступил к подготовке имеющегося материала (один лист разметил, второй обмерил) …

Skodnik

по эскизу КПП я с трудом понял, как происходит переключение передач, если честно 😃 какого диаметра там валы - вообще не понять.

Теперь обращаюсь к тем, что живет в центральных городах России.

ну и потрогаешь ты шестерню в пакетике лапками - дальше что? либо купишь ее втридорога, либо закажешь в инете и будешь месяц благодаря почте ждать, опять же, наугад, поскольку никто не утруждает себя приведением параметров колеса. вообще, такие темы уже холиваром попахивают, кому на Руси жить хорошо.

запчастей НАВАЛОМ amainhobbies.com/…/RC-Cars-Trucks-Option-Parts-Pin…

материал… хм… в Астрахани закончились болты и шпильки М6, и листы пластика или люминиевые полосы? тем более, если есть выход на станки…

дык были бы деньги

  • вот с этого и надо начинать. если их нет, то надо сначала СПРОЕКТИРОВАТЬ, а потом делать… а то так и последние можно спустить непонятно на что…
slavatb

Под 5 мм придется еще пиньоны рассверливать, центр уйдет. Нереальная затея, надо брать по максимум готовые с завода максимально подходящие детали

grundic=
slavatb:

Под 5 мм придется еще пиньоны рассверливать

пиньоны под 5 мм продаются… как бэ… и ничего сверлить не надо…

slavatb

Прочитайте тему, автор собирает только из того, что есть в наличии

grundic=

ааа… ну колхоз - дело добровольное…

Denature

Я думаю если автору понравится, то он и закажет и сам сделает. И второй проект (при условии удачного первого) будет менее колхозным. Все запчасти все равно не израсходуешь… никогда… 😃

mcmixer

Спасибо, при возможности посмотрю - навскидку жесткий проект …

По проекту
Пиньоны растачивать не буду - лучше на токарке ось проточить
Шестерни подобраны, у парочки просто отверстие с 4 до 5 мм расточить - на токарке не проблема
Станок знакомый - я на нем десятки ловил …

Продвижение по проекту - сделал заготовки боковин и корпусов подшипников диффов, завтра буду пилить, есть набросок бодика из ватмана - надо морду продумывать (самое сложное в бодике)
На неделе в планах приступить к торцевым перегородкам
В идеале к концу второй неделе встать на колеса в третий раз, но уже на мастер-модели шасси

Потом будет медленнее - закончится отпуск

mcmixer

Апну тему …
Сегодня дорвался до мастерской и поделал из заготовок детальки…
Сделано 9 деталей (плюс две требуют доработки):
посадочные места и корпуса подшипников дифференциалов
основание шасси
боковые вертикальные плоскости требуют доработки (под передние торцевые заглушки гирбоксов)

Проведена разметка имеющегося материала (стеклотекстолит) на детали…

Проект не умер, проект живет помаленьку …

13 days later
mcmixer

Выложу маленький отчет по строительству проекта …
Во время отпуска поставленная задача «минимум» была выполнена – встать на колеса в третий раз на деталях из стеклотекстолита.

В подтверждение – вот фото.

Был освоен инструмент под названием «Электролобзик». Но не тот, который сейчас продают в магазинах, а старый, советского производства, под пилку для ручного лобзика для фигурного выпиливания по дереву. Дважды ломался (станок) – успешно был восстановлен.
В дополнение к изготовленным 9 деталям было изготовлено порядка 20-30 деталей, которые были склеены в пачки и представляют собой торцевые перегородки гирбоксов.
На модели колеса уже крутят дифференциалы.
Одновременно были напилины поперечные перегородки короба, в которых должны находится подшипники приводов карданного вала (об этом позже).

В ближайшей перспективе – соединить передний и задний гирбоксы через карданный вал, вывести ведомую шестерню главной передачи. После этого строить коробку передач.

Спасибо за внимание, пока всё.

mcmixer

За прошедшие выходные был установлен карданный вал, реализованы приводы дифференциалов и изготовлено рулевое управление (возможно потребует доработки)
Начну с последнего
Вот рулевая трапеция в крайних положениях и при «руле прямо»


Вот пропилы в боковинах для рулевых тяг

Возможно потребуется увеличить пропилы для улучшения артикуляции подвески (чуть –чуть не хватает до полного сжатия) или в случае доработки рулевого управления

Особо внимательные могут заметить винты М2, проходящие сквозь торцевые перегородки. Сделаны сквозные отверстия в нижней деке и поперечинах для фиксации – в перспективе зафиксировать поперечены.

Одно из первых фото шасси сверху. Хотелось показать кардный вал.

Привод дифференциала - сорри - фото только заднего (для переднего надо серву снимать)

Сделаны «заготовочки» для подшипников карданного вала (сделано для проверки – вроде получилось), в отношении переднего привода будет осуществлена интеграция с коробкой передач (не переживайте, шестерню главной передачи – спур – закроем), задние перегородочки потребуют подгонки и окончательного монтажа.

С ПРАЗДНИКОМ!!! С ДНЕМ ПОБЕДЫ !!!

Shakal2410

А зачем при независимой подвеске, поворотные кулаки соединены цельной тягой. А как подвеске то работать?

Конструкция рулевого управления очень сильно зависит от типа подвески управляемых колес. При зависимой подвеске передних колес в принципе сохраняется схема рулевого управления, приведенная на (рис. а), при независимой подвеске (рис. б) рулевой привод несколько усложняется.

10 months later
молот

интересно,тема затихла?проект заброшен?

mcmixer

Тема притихла
Проект не заброшен, но приостановлен (работа съедает)
Стадия - изготовление стоек КПП

молот

я хотел спросить по поводу ходовой из ттшки,она по надежности не подведет?

Blood13
молот:

я хотел спросить по поводу ходовой из ттшки,она по надежности не подведет?

Так по моему она от той же багги, ничем не отличается… кулаки те же… только с шаровыми… и рычаги короче